Town House Refurbishment
80 Canon St Winchester
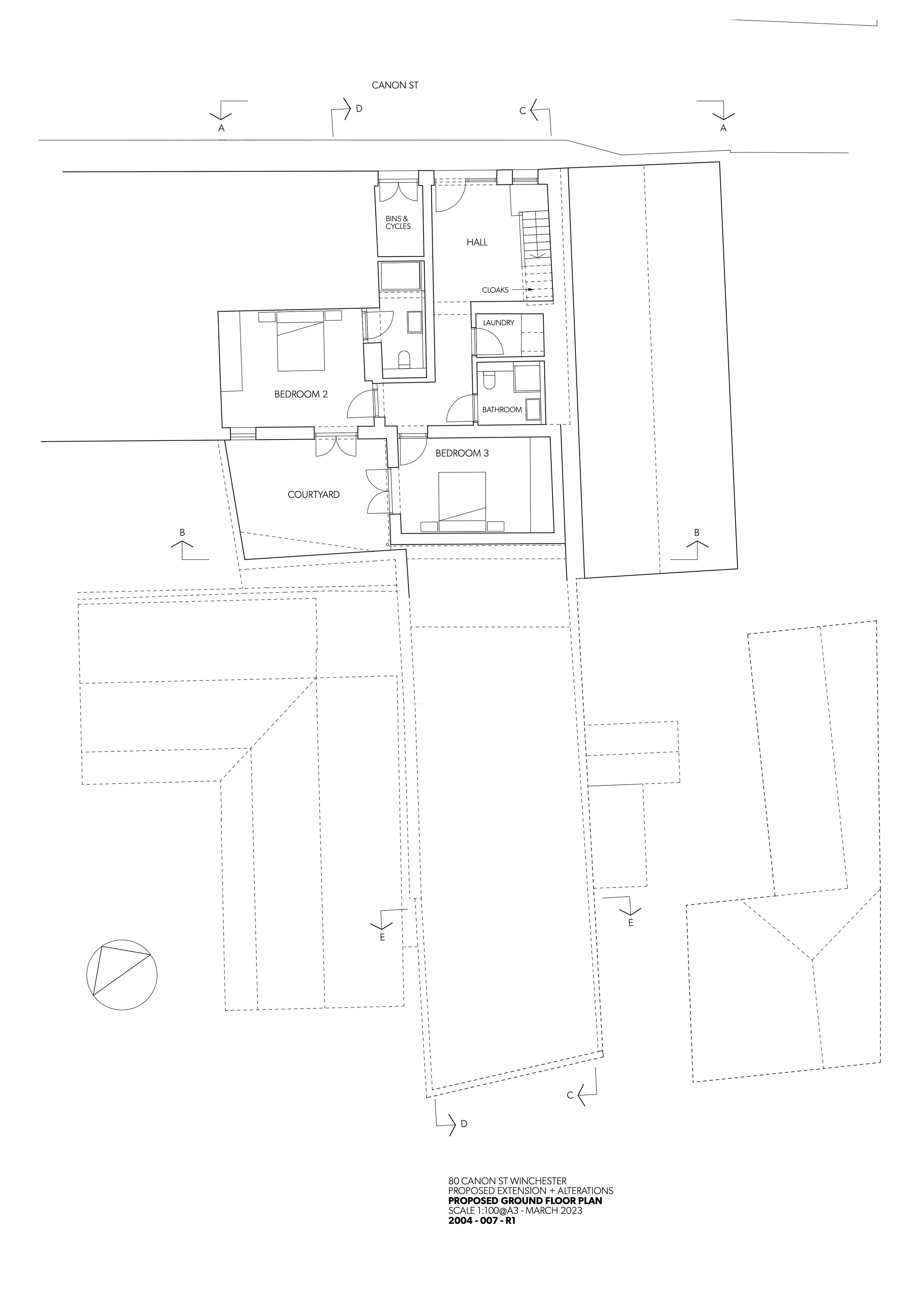
No. 80 Canon Street sits in the Conversation area just outside the city walls, the end house of a terrace of eight houses built in the mid 19th century. It is believed that the rear of this house was used as an abattoir, with a butcher’s shop on the street.
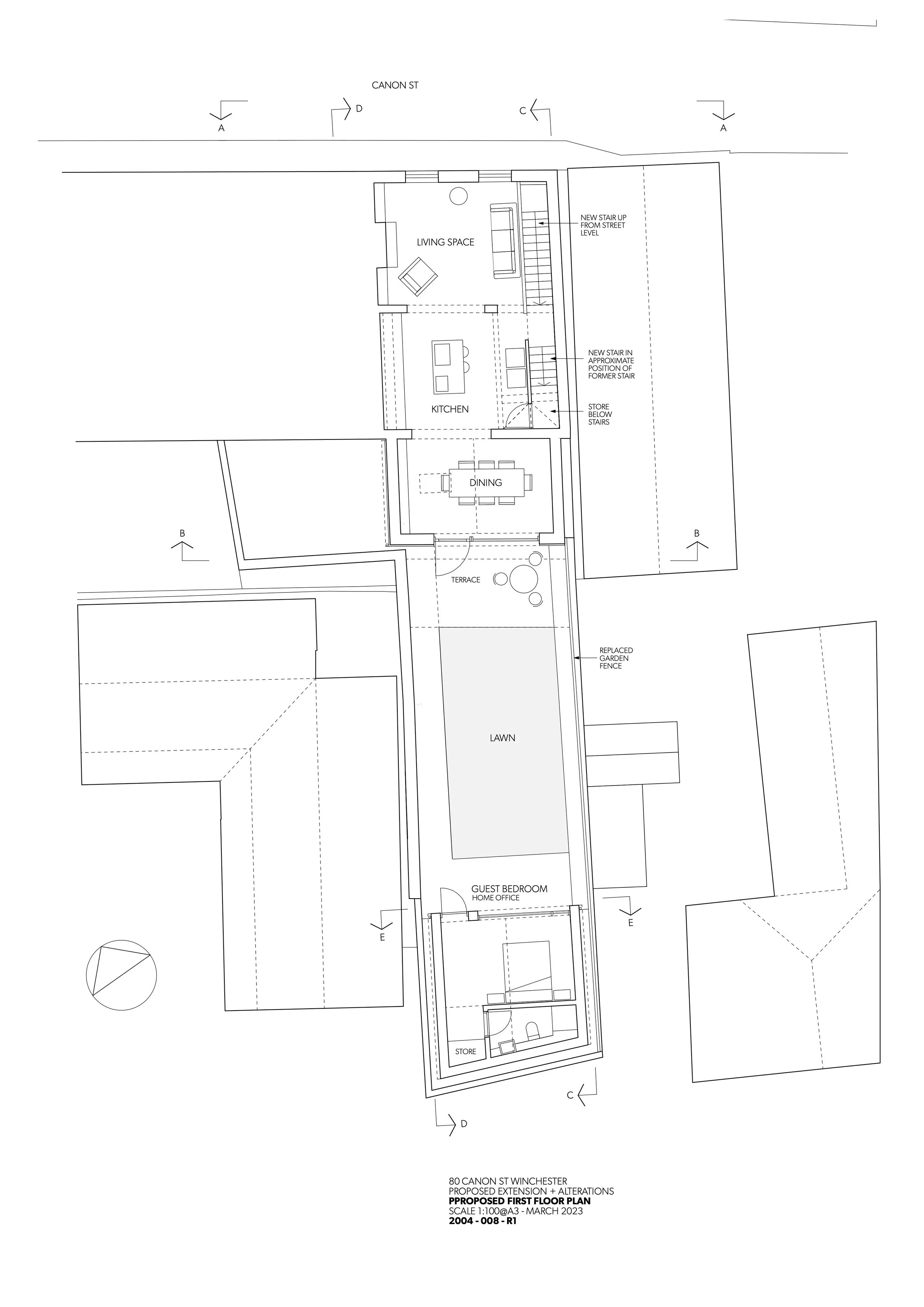
This project was an opportunity to re-instate a classic townhouse typology, perhaps lost through the various alterations that have occurred over time.
A key move was to locate the living spaces on the first floor level, with the garden at the rear of the property. A small extension with a reciprocal pitched roof (mirroring the existing pitches on the terrace), provides a more positive connection to the garden.
The garden is book ended with a home office/guest room, reflecting the house extension.
The master bedroom is on the second floor, with 2 further bedrooms and the hall located at street level.
Full planning permission was achieved in 2023