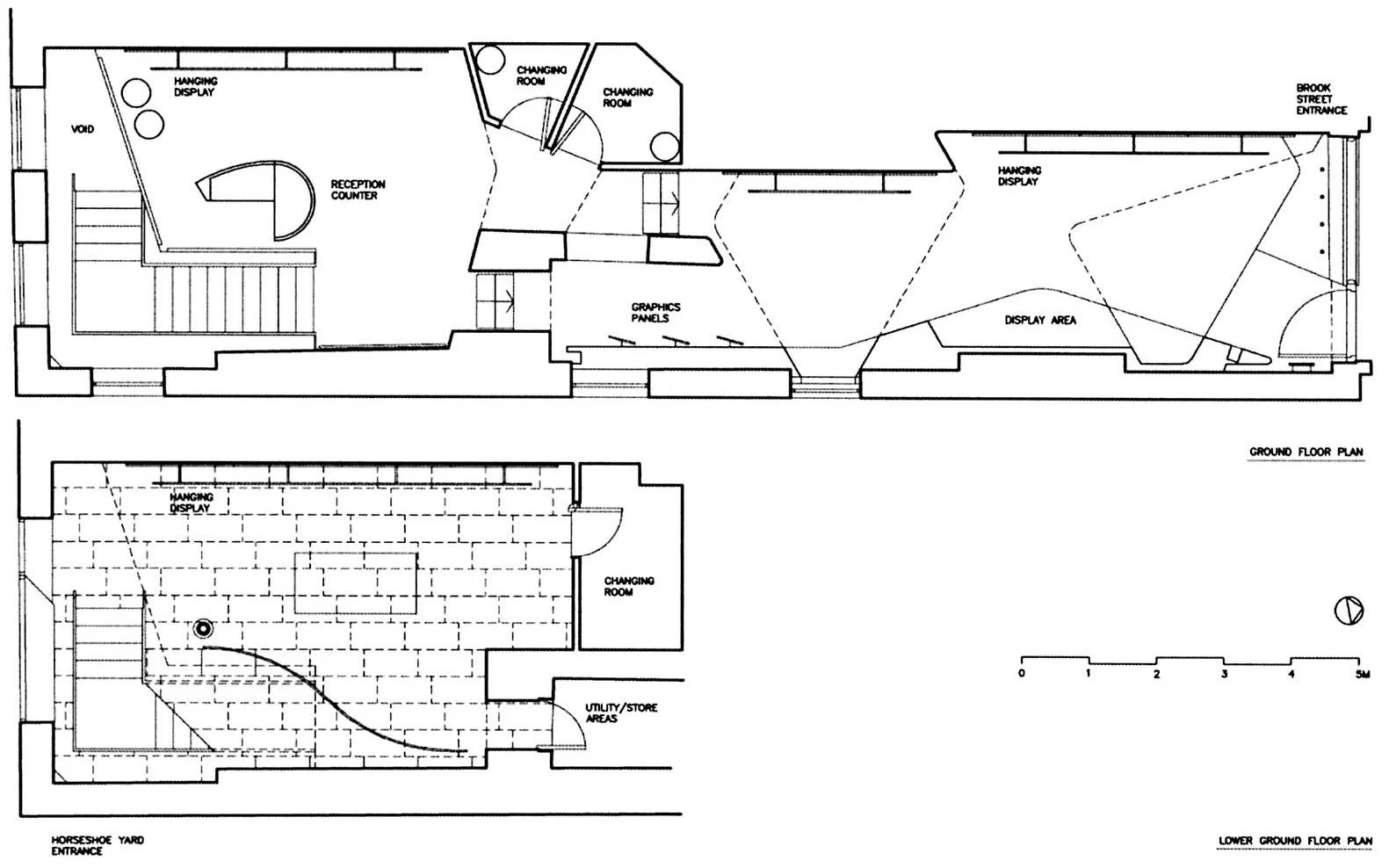
La Perla

South Molten St - London

Project architect - Apicella Associates - 1998

Sculpture as it was known, was a high end boutique shop, within a listed 18th century terraced house.

The project required a new stair to the rear and a retail environment for displaying product, and graphic displays. Lighting and colour temperature was critical, including storage in bespoke cabinets, that emphasised a serpentine route through the shop.

This project was an opportunity to explore lighting, product display and joinery design, working with shop fitters and skilled fabricators.

Previous
Previous

Menswear display units - The Hambledon Winchester

Next
Next

Old Building Reception - London School of Economics